| Bauherrschaft | Amt für Grundstücke und Gebäude des Kantons Bern, AGG |
| Auftragsart | offener Wettbewerb, 1. Preis |
| Bearbeitung | 2022-2031 |
| Team Wettbewerb | Architektur: Giulio Branca, Carla Llaudo Landschaft: Blau und Gelb Landschaftsarchitekten Bauingenieur: Ulaga Weiss AG HLKS: Bogenschütz AG Elektro und Brandschutz: HKG Engineering AG |
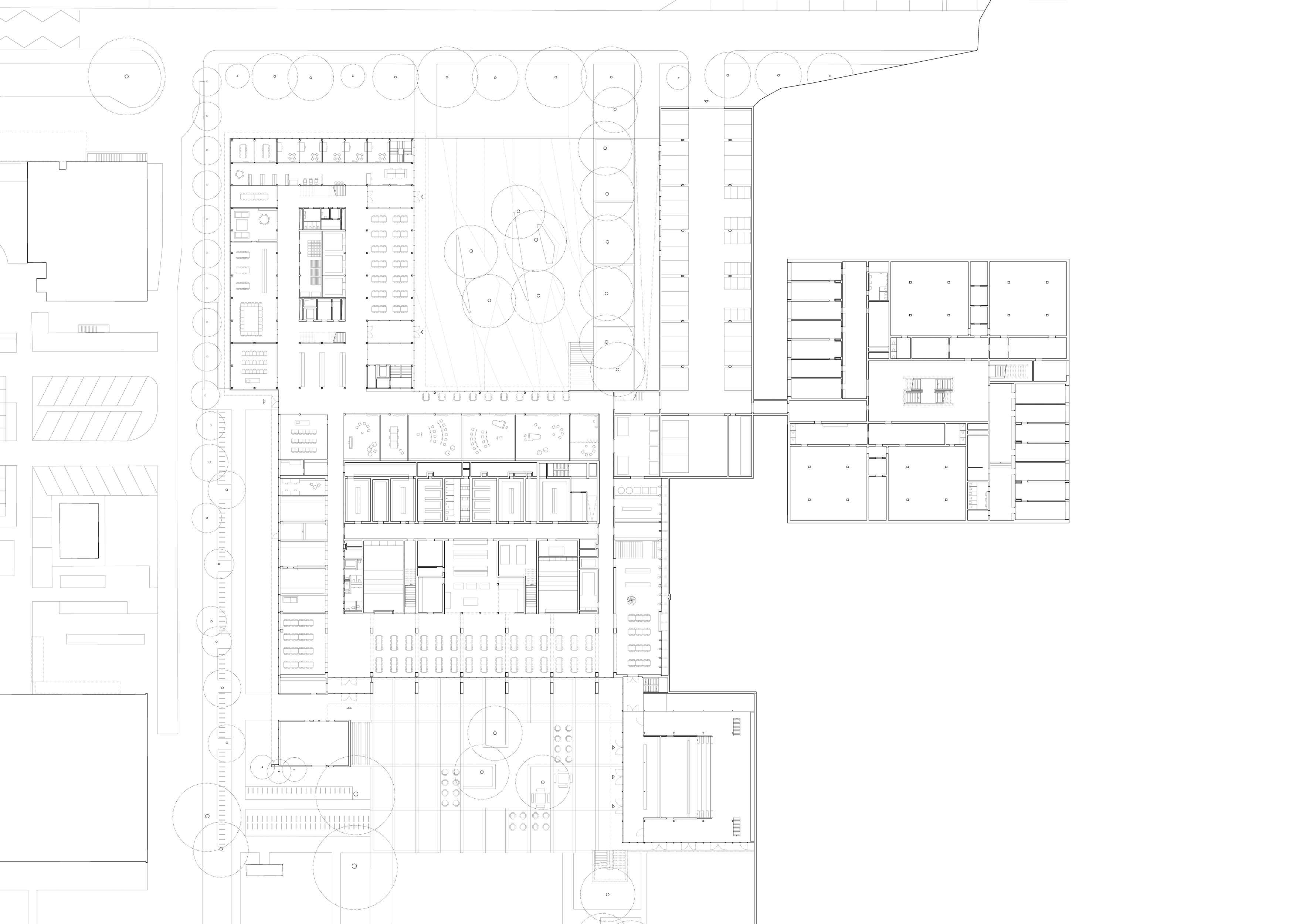
| Flächen | 9’952 m2 Geschossfläche |
Visualisierungen © Play-Time