NOSU
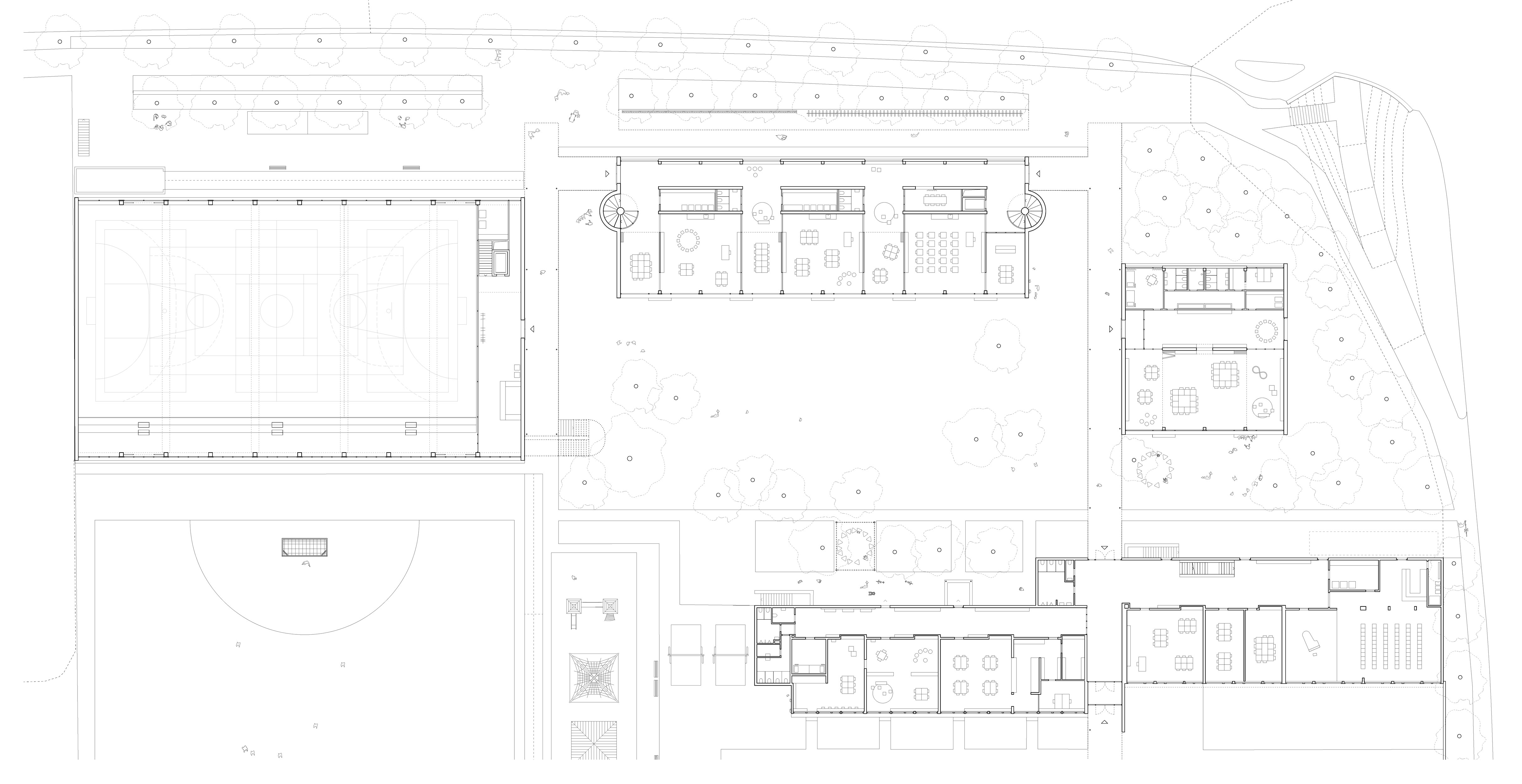
Schulanlage Neufeld
Schulanlage Neufeld
Info
Bauherrschaft
Stadt Thun
Auftragsart
offener Wettbewerb
Bearbeitung
2023
Team
Giulio Branca, Carla Llaudo
Planungsteam
Landschaft: Bryum GmbH
Bauingenieur: Pirmin Jung Schweiz AG
Flächen
4'450 m
2
Geschossfläche
Visualisierungen © Play-Time